Специальные анкеры

Треугольный анкер

Detaylı bilgi için iletişime geçiniz.

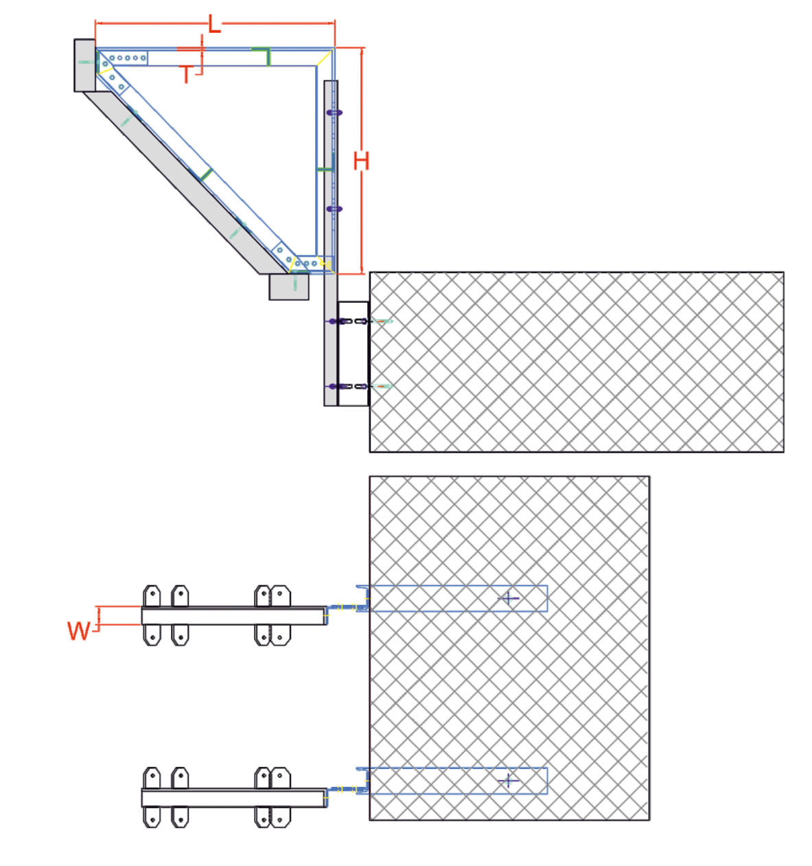
Треугольный анкер — это высокопрочный крепёжный элемент, разработанный для анкерования вертикальных несущих осей к железобетонной конструкции в механических фасадных системах. Треугольная геометрия корпуса повышает сопротивление анкера изгибу и кручению, обеспечивая наиболее эффективную передачу ветровых нагрузок на конструкцию. Благодаря слот-каналам позволяет выполнять миллиметровую регулировку профиля по глубине и по вертикальной оси. Обычно изготавливается из алюминиевого сплава 6063-T6, что обеспечивает малый вес и высокую коррозионную стойкость.